30 mil m2 • 4 pavimentos • auditórios
O Pavilhão Ciccillo Matarazzo é palco de uma das mais importantes exposições de arte do mundo: a Bienal de São Paulo. Projetado por Oscar Niemeyer, esse patrimônio histórico é um marco da arquitetura moderna brasileira e um dos símbolos da vida cultural na cidade.
A Fundação Bienal tem a honra de zelar pela salvaguarda do edifício e acredita que a melhor maneira de fazer isso é trabalhar em conjunto com organizações e empresas para que todos possam usufruir do prédio e participar de sua conservação. Com proporções monumentais, seus 30 mil m² podem ser ocupados de diversas maneiras. Confira abaixo tudo o que você precisa saber para planejar seu evento aqui!
A ausência de divisórias internas em seus pavimentos e a oferta de espaços de circulação exclusiva fazem do Pavilhão Ciccillo Matarazzo um local extremamente versátil, capaz de receber exposições, mostras e eventos variados com os mais diversos usos de sua generosa área.
TÉRREO E MEZANINO
BAIXE A PLANTA EM PDF
PRIMEIRO PAVIMENTO
BAIXE A PLANTA EM PDF
SEGUNDO PAVIMENTO
BAIXE A PLANTA EM PDF
TERCEIRO PAVIMENTO - FRENTE
BAIXE A PLANTA EM PDF
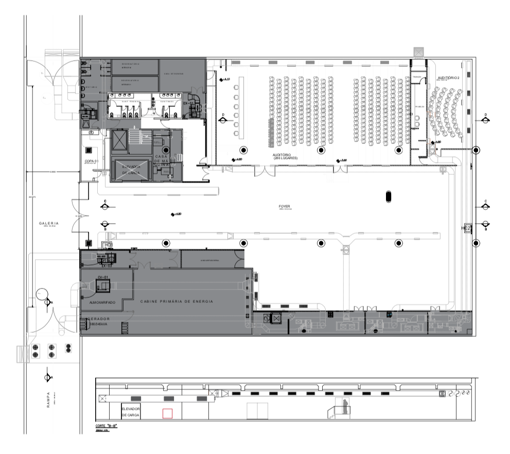
TERCEIRO PAVIMENTO - COM AUDITÓRIO
BAIXE A PLANTA EM PDF
LOUNGE
BAIXE A PLANTA EM PDF